Dave Lift Dave Lift

Fujivista Domestic Lifts Mrl Home Elevator Small Glass Villa Lift with Panoramic Observation Design and LED Lighting

Customization: Available
Driving Type: AC Elevator
Capacity: 500-1000kg

Product Description

📋 Basic Information
Model NO.
JH-RS1
Persons
6 - 10
Speed
1.00 - 2.00m/s
Control Mode
Collective Selective Control
Position
Computer Room Up
Door Type
Center Opening Door
Traction
Gearless Traction Machine
Material
Mirror Etching Panel
Control System
Monarch Vvvf Controller
Optional
Ard, IC Card, Remote Monitor
Application
Hotel, Apartment, Office Building
Buffer
Hydraulic Buffer
🏗️ Product Description
Passenger Elevator: Built for high-rise residential, commercial, and office buildings, offering quiet, smooth rides, energy efficiency, and customizable elegant cabins.
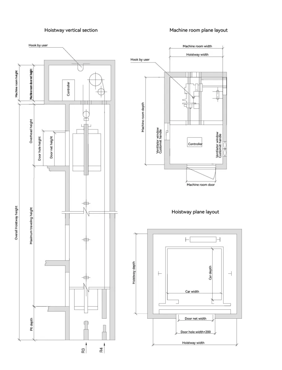
📐 Construction Sketch
  • ✅ Drawings meet elevator standards. Once approved, they guide installation.
  • ✅ Holes from machine room to well must have a step >50mm and proper width.
  • ✅ Ensure a step between ground decor and door sill to block water post-installation.
  • ✅ Create buffer base under installer guidance.
Technical Drawing
📊 Technical Specifications
Load (kg) Speed (m/s) Hoistway Size (mm) Machine Room Size (mm) Car Dimension (mm) Door Size (mm) Overhead (mm) Pit Depth (mm)
630 1.0 2000×1800 2000x3500 1400×1100 800 4500 1500
1.5 4600 1600
1.75 4700 1700
2.0 4900 2000
🛠️ After Sales Service
🛡️ Standard Warranty

12 months post-assembly (transportation excluded).

🌐 Global Support

24/7 tech assistance and spare parts available.

🎓 Training

On-site or remote operation/maintenance training.

🏢 Capabilities & Other Products
Production Facility
Why Us?
OEM/ODM capabilities, Competitive pricing, Fast shipping & Turnkey project solutions.
Product Range
Home elevators, Freight elevators, Sightseeing elevators.
Frequently Asked Questions
1. How to handle installation post-purchase?
Comprehensive manuals and technical drawings are provided. You can hire local teams, and our engineers offer remote guidance for seamless installation.
2. How is damage risk during sea freight managed?
We use reinforced crates and anti-rust packaging. Under CIF terms, full insurance covers goods from port to port.
3. What is the timeline for a customized elevator?
The process includes design (approx. 3 days), production (post-deposit), and delivery (ships 15 days after final balance).
4. What are the payment terms?
Standard terms are a 30% deposit to start and 70% balance due post-production, prior to shipment, primarily via T/T.
5. What additional costs should be considered?
Quotes include product, packaging, and shipping/insurance (under CIF). Consider local import duties, customs fees, and local inland transport.
6. Is technical training provided for maintenance?
Yes, we provide both on-site and remote training options for operation and long-term maintenance.

Related Products