Dave Lift Dave Lift

Fujivista Domestic Lifts Mrl Home Elevator Small Glass Villa Lift with Smart Gearless Traction System, 3-5 Persons Residential Panoramic Elevator, Elevador Resi

Customization: Available
Driving Type: AC Elevator
Capacity: 500-1000kg

Product Description

Basic Specifications
Model NO.JH-RS100
Capacity6 - 10 Persons
Speed1.00 - 2.00m/s
Control ModeCollective Selective Control
Machine RoomUpper Position
Elevator DoorCenter Opening Door
Traction MachineGearless Traction Machine
Control SystemMonarch Vvvf Controller
Buffer TypeHydraulic Buffer
MaterialMirror Etching Panel
Product Overview
Passenger Elevators: Engineered for high-rise buildings, these systems offer smooth, quiet rides, high energy efficiency, and fully customizable cabins to match architectural aesthetics.
Observation Elevator Design
Observation Home Elevator Unit 1
Observation Elevator Design
Observation Home Elevator Unit 2
Observation Elevator Design
Observation Home Elevator Unit 3
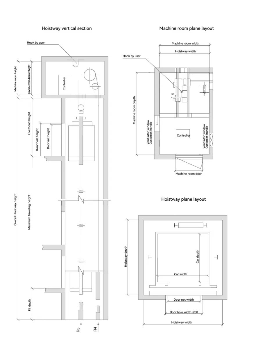
Technical Parameters & Installation

1. Approved drawings guide installation, meeting strict international elevator standards.
2. Proper width for machine room to well holes is essential for safety.
3. Water entry prevention measures are integrated into the door sill design.

Technical Sketch of Passenger Elevator
Load (kg) Speed (m/s) Hoistway Size (mm) Car Dimension (mm) Door Opening (mm) Overhead Height Pit Depth
630 1.0 2000 × 1800 1400 × 1100 800 4500 1500
1.5 4600 1600
1.75 4700 1700
2.0 4900 2000
Service & Manufacturing
Manufacturing Facility

After Sales Support

  • Warranty: 12 months comprehensive support post-assembly.
  • Global Help: 24/7 technical assistance and spare parts availability.
  • Training: Detailed on-site or remote maintenance training programs.

Why Choose Our Solutions

  • ISO 9001 and CE Certified manufacturing processes.
  • Full OEM/ODM capabilities for customized projects.
  • Turnkey project solutions from design to delivery.
Workshop
Workshop Quality Control
Frequently Asked Questions
Q: How is the installation handled after purchase?
Full manuals and technical drawings are provided. You can hire local installation teams, and our engineers offer remote guidance throughout the process.
Q: How do you manage the risk of damage during sea freight?
We use reinforced wooden crates and anti-rust packaging. For CIF terms, full insurance is included to protect your investment.
Q: What is the typical timeline for a customized elevator?
Design proposals are ready in 3 days. Production begins after the deposit, and shipping typically occurs within 15 days after the final balance is received.
Q: What are the accepted payment terms?
We usually require a 30% deposit to start production, with the remaining 70% balance due after production and before shipment via T/T.
Q: What additional costs should be considered in the quote?
The quote includes product costs and export packaging. Depending on Incoterms (FOB/CIF), it may include freight and insurance. Note that local import duties and installation labor are handled locally.
Q: Are the elevators certified for international use?
Yes, our manufacturing processes are ISO 9001 certified, and products carry CE certification to meet global safety standards.

Related Products