Dave Lift Dave Lift

Fujivista Domestic Lifts Mrl Home Elevator Small Mirror Villa Lift with Hydraulic Buffer Safety Technology, Residential Elevator

Customization: Available
Driving Type: AC Elevator
Capacity: 500-1000kg

Product Description

Basic Specifications

Model NO.JH-R02
Capacity6 - 10 Persons
Speed1.00 - 2.00m/s
Control ModeCollective Selective Control
Computer RoomPositioned Up
Elevator DoorCenter Opening Door
DecelerationWith Deceleration Device
BufferHydraulic Buffer
Traction MachineGearless Traction Machine
Control SystemMonarch Vvvf Controller
MaterialMirror Etching Panel
ApplicationHotel, Apartment, Office Building

Product Description

Our Passenger Elevators are designed for high-rise buildings, offering smooth, quiet rides, high energy efficiency, and fully customizable cabins to match your architectural vision.

Observation home elevator

Observation home elevator

Observation home elevator

Observation home elevator

Observation home elevator

Observation home elevator

Installation & Technical Guidelines

  • 📝
    Approved drawings guide professional installation, meeting strict elevator standards.
  • 🏗️
    Ensure >50mm step and proper width for machine room to well holes.
  • 💧
    Proper stepping between decor and door sill prevents water entry post-installation.
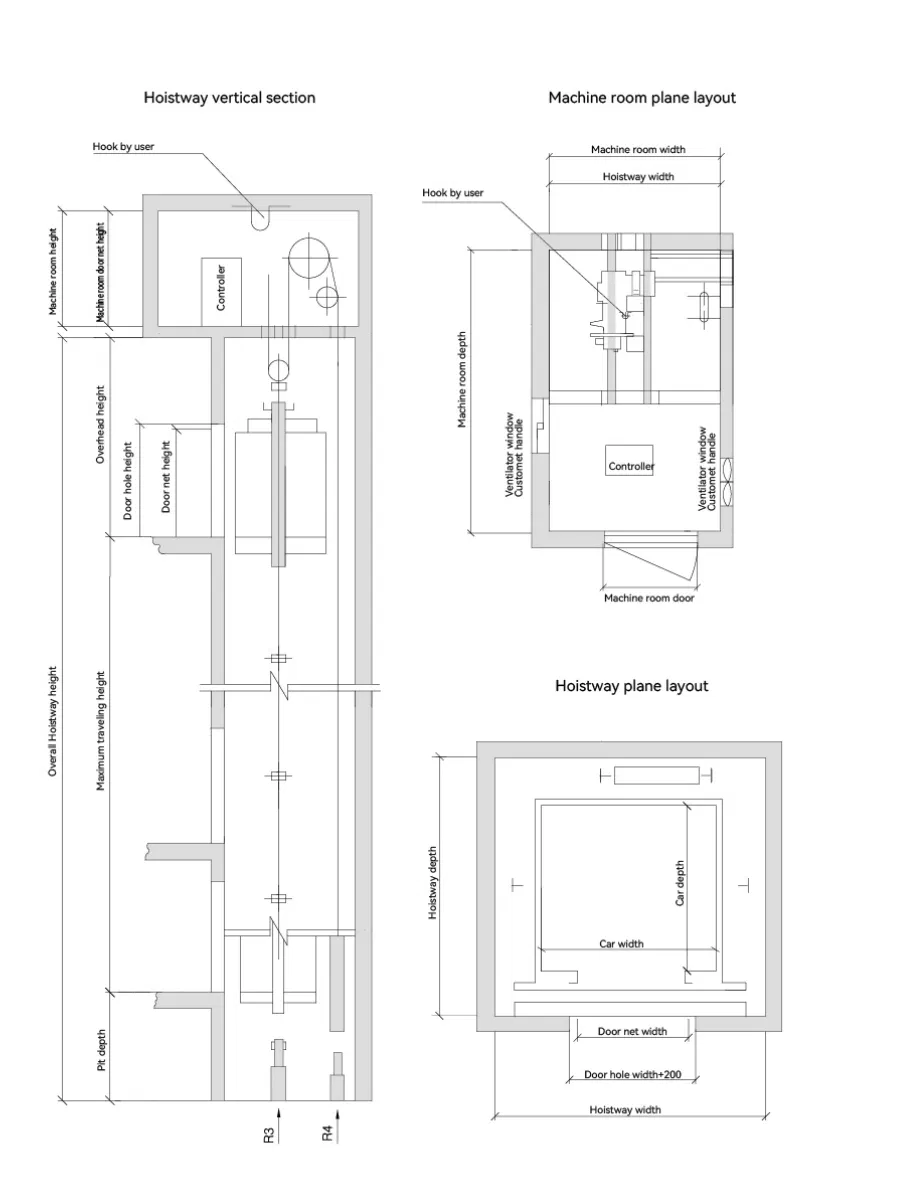
Passenger elevator sketch
Load (kg) Speed (m/s) Hoistway Size (mm) Machine Room Size (mm) Car Dimension (mm) Door Opening (mm) Overhead Height Pit Depth
630 1.0 2000 × 1800 2000 x 3500 1400 × 1100 800 4500 1500
1.5 4600 1600
1.75 4700 1700
2.0 4900 2000

* Note: Technical data is for reference. Final manufacture follows the contract specifications.

After Sales Service

Standard Warranty

12 months post-assembly coverage (excluding transportation fees).

Global Support

24/7 technical assistance and guaranteed spare parts availability.

Training

Comprehensive on-site or remote operation and maintenance training sessions.

Professional Manufacturing

As a leading elevator manufacturer, we hold ISO 9001 and CE certifications. Our products are exported to over 10 countries, supported by robust R&D and quality-backed manufacturing processes.

Manufacturing facility
Elevator components
Quality control

Why Choose Us?

  • OEM/ODM capabilities
  • Competitive pricing & bulk discounts
  • Fast shipping & customs clearance
  • Turnkey project solutions

Other Products

  • Home elevators
  • Freight elevators
  • Sightseeing elevators
  • Customized lift solutions

Frequently Asked Questions

Q: How is the installation handled after purchase?
A: Complete manuals and technical drawings are provided. While you should hire local professional teams, our engineers offer comprehensive remote guidance throughout the process.
Q: What measures are taken to prevent damage during sea freight?
A: We use reinforced wooden crates and anti-rust packaging. Additionally, all shipments under CIF terms include full insurance to manage any transit risks.
Q: What is the typical timeline for a customized elevator?
A: 1. Design: Proposal in 3 days after hoist-way details. 2. Production: Starts post-deposit. 3. Delivery: Ships approximately 15 days after final balance payment.
Q: What are the accepted payment terms?
A: Our standard terms are a 30% deposit to initiate production, with the remaining 70% balance due post-production and prior to shipment via T/T (Telegraphic Transfer).
Q: Are there additional costs beyond the initial quote?
A: Our pricing is transparent. Depending on Incoterms (FOB/CIF), the quote includes the product, export packaging, freight, and insurance. Customers should consider local import duties and installation labor.
Q: Can the cabin design be customized for my building?
A: Yes, we offer full customization for mirror etching panels, materials, and dimensions to ensure the elevator fits your building's aesthetic and technical requirements.

Related Products