1 / 5
Dave Lift
Passenger Elevators: Designed for high-rise buildings, our elevators offer smooth, quiet rides, exceptional energy efficiency, and fully customizable cabins to match any architectural style.
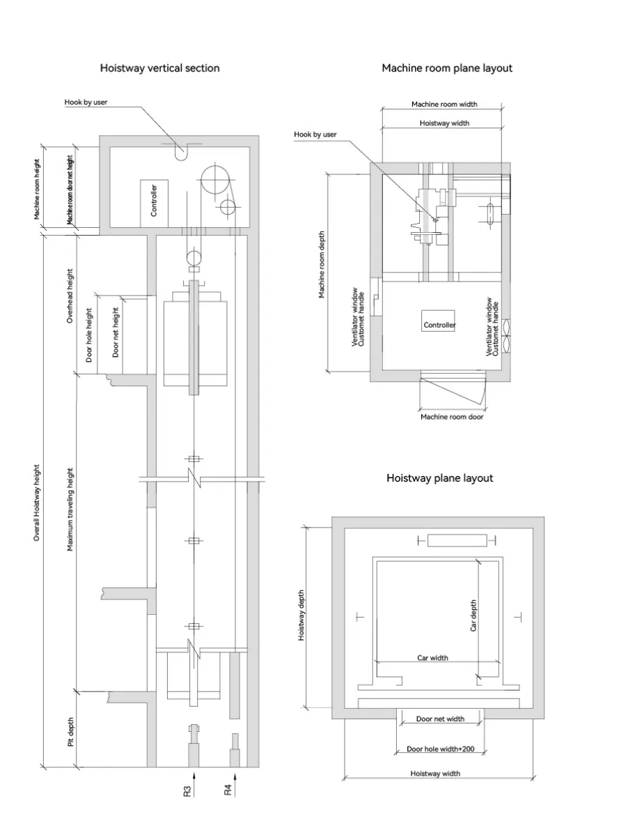
| Load (kg) | Speed (m/s) | Hoistway Size (mm) XxY | Machine Room Size (mm) | Car Dimension (mm) A×B | Door Opening (mm) | Overhead (OH) | Pit Depth (PP) |
|---|---|---|---|---|---|---|---|
| 630 | 1.0 | 2000×1800 | 2000x3500 | 1400×1100 | 800 | 4500 | 1500 |
| 1.5 | 4600 | 1600 | |||||
| 1.75 | 4700 | 1700 | |||||
| 2.0 | 4900 | 2000 |
As a leading elevator manufacturer with ISO 9001 and CE certifications, we export to over 10 countries. Our focus remains on R&D and delivering quality-backed vertical transportation solutions.

