Dave Lift Dave Lift

Fujivista 3 Story Residential Lift Mrl Home Elevator Small Domestic Lifts with Inverter Technology for Private Villa

Customization: Available
After-sales Service: One Year
Warranty: One Year

Product Description

i

Basic Information

Model NO.
JH-RX3
Driving Type
AC Elevator
Capacity
<500kg
Persons
<5
Speed
<1.00m/s
Control Mode
Collective Selective Control
Computer Room
Up / Machine Roomless
Elevator Door
Center Opening Door
Buffer
Hydraulic Buffer
Application
Hotel, Apartment, Office Building, Villa
Control System
Monarch Vvvf Controller
Traction Machine
Gearless Traction Machine
P

Product Description

Passenger Elevator Solutions: Specialized in high-quality residential lift systems, providing a smooth and quiet experience for 3-story homes and villas. Utilizing advanced Inverter Elevator technology for superior energy efficiency and customizable cabin designs.

Observation Home Elevator View 1

Observation Home Elevator

Observation Home Elevator View 2

Observation Home Elevator

Observation Home Elevator View 3

Observation Home Elevator

Installation & Technical Guidance

  • Approved drawings guide installation to meet international standards.
  • Ensure >50mm step and proper width for machine room to well holes.
  • Strategic step design between decor and door sill to prevent water entry.
  • Precision-engineered buffer base creation under expert guidance.
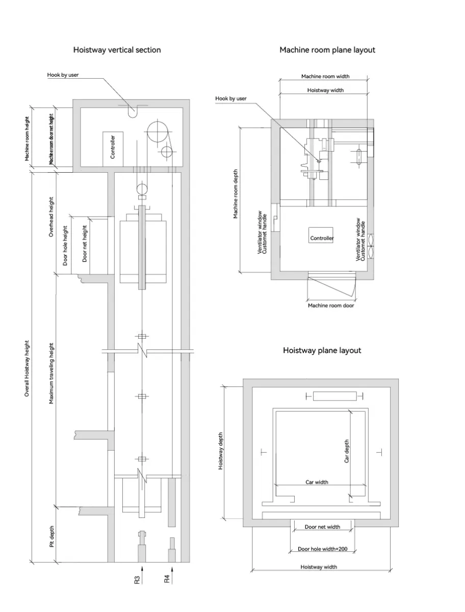
Small Machine Room Passenger Elevator Sketch

Small Machine Room Passenger Elevator Sketch

T

Technical Specifications

Load (kg) Speed (m/s) Hoistway Size (mm) XxY Machine Room Size (mm) Car Dimension (mm) Door Opening (mm) Overhead Height (OH) Pit Depth (PP)
630 1.0 2000 × 1800 2000 x 3500 1400 × 1100 800 4500 1500
1.5 4600 1600
1.75 4700 1700
2.0 4900 2000

* Note: Data provided for reference only. Final manufacturing follows specific contract details.

S

After Sales Service

Standard Warranty:
12 months post-assembly (excludes transportation fees).
Global Support:
24/7 tech help and spare parts availability.
Training:
On-site or remote operation/maintenance training.
C

Manufacturing Capabilities

Manufacturing Facility

As a leading Chinese elevator manufacturer with ISO 9001 and CE certifications, we export to over 10 countries. Our focus remains on high-quality R&D and precision engineering for residential and commercial mobility.

Workshop View 1
Workshop View 2
Core Advantages: OEM/ODM capabilities, competitive pricing, turnkey project solutions, and fast shipping.
Extended Range: Home elevators, Freight elevators, Sightseeing elevators.
Q

Frequently Asked Questions

Q: How to handle installation post-purchase?
A: Manuals and detailed drawings are provided. You can hire local teams while our engineers offer remote guidance to ensure a successful setup.
Q: How is damage risk during sea freight managed?
A: We use reinforced wooden crates and anti-rust packaging. Full insurance is typically included under CIF terms to protect your investment.
Q: What is the timeline for a customized elevator?
A: 1. Design: Submit hoist-way details, proposal ready in 3 days. 2. Production starts post-deposit. 3. Delivery: Ships approx. 15 days after balance payment.
Q: What are the payment terms?
A: We offer flexible terms, typically a 30% deposit to start production and the 70% balance due post-production and pre-shipment via T/T.
Q: What additional costs are included in the quote?
A: The quote includes the product cost, professional export packaging, and freight/insurance if under CIF. Note that local import duties and installation labor are usually separate.
Q: Can these elevators be installed in existing homes without a pit?
A: Yes, we offer pitless designs and MRL (Machine Roomless) options specifically engineered for private villas and residential buildings with space constraints.

Related Products