Dave Lift Dave Lift

Fujivista Domestic Lifts Mrl Home Elevator Small Stair Lift for Residential House, Smart Passenger Elevator with Sensitive Door Sensors

Customization: Available
Driving Type: AC Elevator
Capacity: <500kg

Product Description

Basic Specifications

Model NO.
JH-R02
Capacity
<5 Persons
Speed
<1.00m/s
Control Mode
Collective Selective Control
Machine Room
Position Up
Elevator Door
Center Opening Door
Traction Machine
Gearless Traction Machine
Material
Mirror Etching Panel
Control System
Monarch Vvvf Controller
Application
Hotel, Apartment, Office Building

Passenger Elevator Description

Passenger Elevators: Designed for high-rise buildings, offering smooth, quiet rides, exceptional energy efficiency, and customizable cabins to suit modern architectural needs.

Installation Guidance

1. Approved drawings guide installation, meeting elevator standards.
2. Ensure >50mm step and proper width for machine room to well holes.
3. Step between decor and door sill to prevent water entry post-installation.
4. Create buffer base under professional installer guidance.

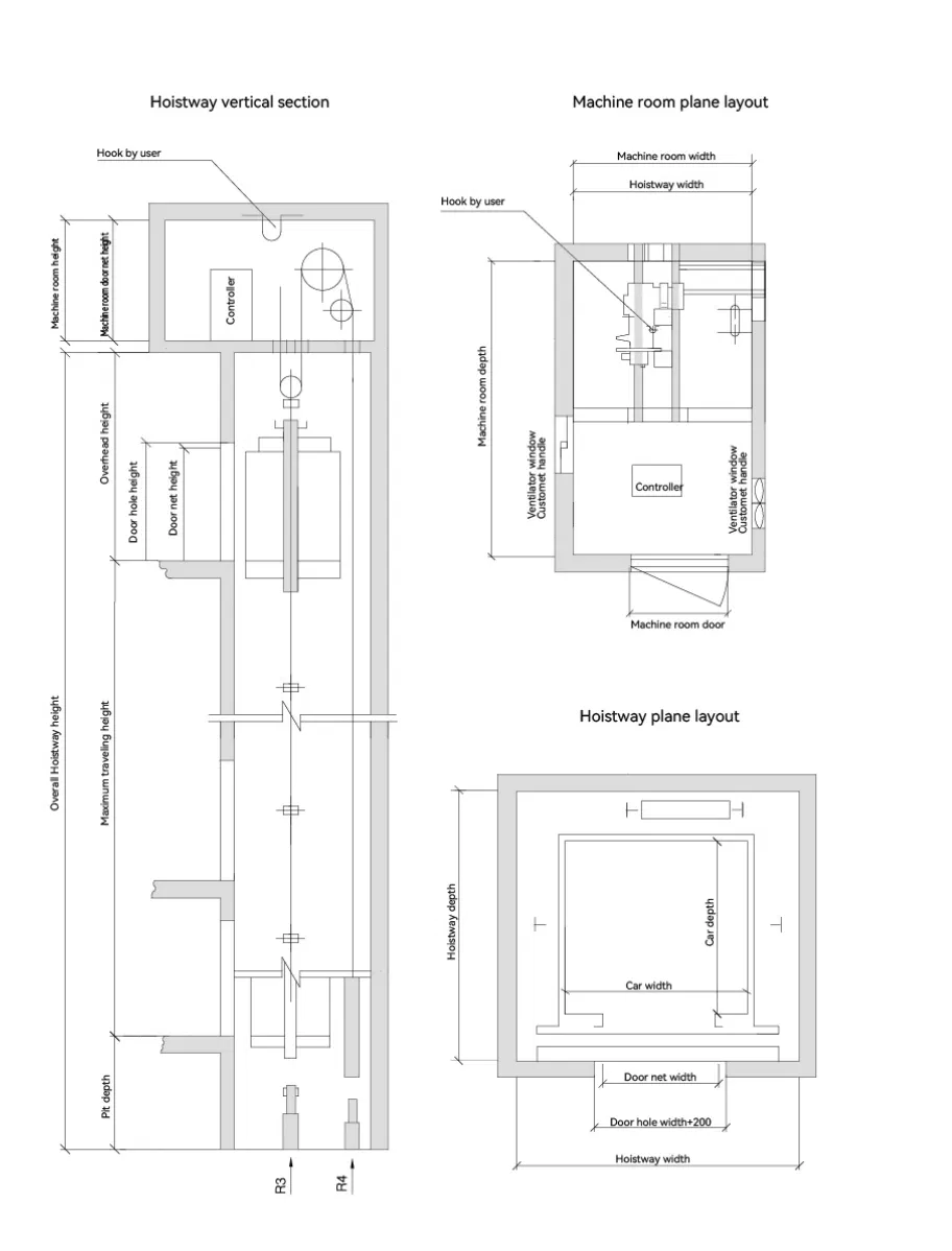
Technical Parameters

Load (kg) Speed (m/s) Hoistway Size (XxY mm) Machine Room (WxD mm) Car Size (AxB mm) Door Size (mm) Overhead (OH) Pit Depth (PP)
630 1.0 2000×1800 2000x3500 1400×1100 800 4500 1500
1.5 4600 1600
1.75 4700 1700
2.0 4900 2000

*Note: Data for reference only. Final manufacture follows the specific contract terms.

After Sales Service

Standard Warranty: 12 months post-assembly.
Global Support: 24/7 technical help and spare parts availability.
Training: On-site or remote operation and maintenance training.

Company Profile

A leading elevator manufacturer with ISO 9001 and CE certification. Exporting to over 10 countries, focusing on R&D and high-quality vertical transport solutions. We provide OEM/ODM capabilities, competitive pricing, and turnkey project solutions including home, freight, and sightseeing elevators.

Frequently Asked Questions

Q: How to handle installation post-purchase?
A: Comprehensive manuals and technical drawings are provided. You can hire local installation teams, and our engineers offer remote professional guidance throughout the process.
Q: How is damage risk during sea freight managed?
A: We use reinforced wooden crates and anti-rust packaging to protect the equipment. Additionally, we provide full insurance under CIF terms to cover any potential risks.
Q: What is the timeline for a customized elevator?
A: 1. Design: Submit hoist-way details, proposal in 3 days. 2. Production: Commences post-deposit. 3. Delivery: Ships approximately 15 days after the balance is received.
Q: What are the payment terms?
A: We offer flexible and secure options. Standard terms are a 30% deposit to start production, with the remaining 70% balance due post-production and prior to shipment (primarily via T/T).
Q: What additional costs are included in the quote?
A: Depending on Incoterms (FOB/CIF), the quote includes the product cost, professional export packaging, freight to the port, and insurance. Note: Local import duties, customs fees, and installation labor are usually handled by the buyer.
Q: What is the standard warranty period?
A: We offer a standard warranty of 12 months following the assembly of the elevator, providing peace of mind for your investment.

Related Products