1 / 5
Dave Lift






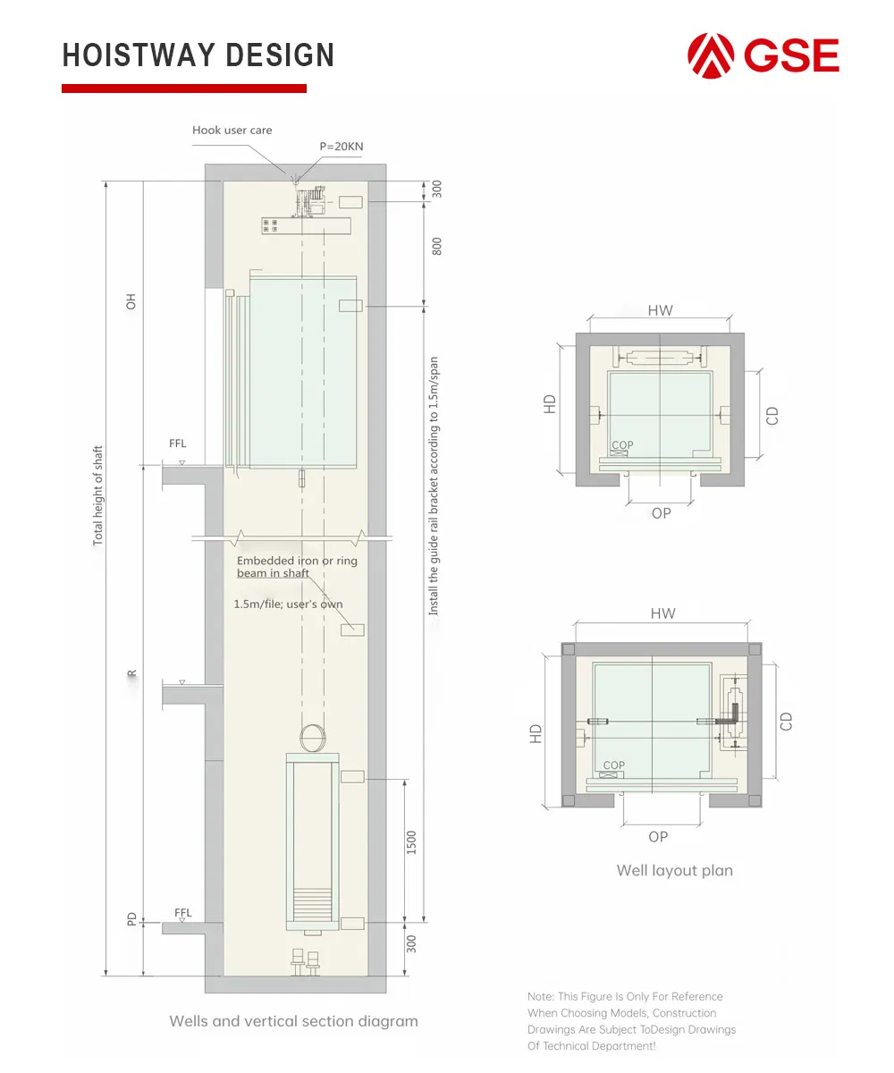
| LOWER PULLEY, SIDE COUNTER WEIGHT | ||||||
|---|---|---|---|---|---|---|
| LOAD (KG) | SPEED (m/s) | CABIN SIZES (mm) | DOOR OPEN (mm) | HOISTWAY SIZES (mm) | OH (mm) | PIT (mm) |
| 250 | ≤0.63 | 900*1280*2200 | 650/750 | 1450*1550 | 2800 | 300 |
| 320 | ≤0.63 | 1000*1280*2200 | 700/800 | 1550*1550 | 2800 | 300 |
| 400 | ≤0.63 | 1100*1280*2200 | 750/800 | 1650*1550 | 2800 | 300 |